logo
Wyślij wiadomość

Stacja benzynowa ODM Szopa Stalowa rama Budynki przemysłowe Prefabrykowane ISO9001

10 zestawów
MOQ
Stacja benzynowa ODM Szopa Stalowa rama Budynki przemysłowe Prefabrykowane ISO9001
cechy Galeria opis produktu Poprosić o wycenę
cechy
specyfikacje
Miejsce produkcji: Chiny
Standardowy: GB (standard chiński)
Zastosowanie: Stacja paliw
Obsługa powierzchni: Cynkowane ogniowo, farba antykorozyjna, ocynkowana
OEM/ODM: - Tak, proszę.
Materiał: Q355 i Q235
Podkreślić:

ODM Budynki przemysłowe z ramą stalową

,

budynki przemysłowe z ramą stalową ISO9001

,

prefabrykaty z ramą stalową

Podstawowe informacje
Miejsce pochodzenia: Chiny
Nazwa handlowa: GST
Orzecznictwo: ISO9001, CE certificate of quality system
Numer modelu: Komercyjny budynek ze stalowej ramy
Zapłata
Szczegóły pakowania: Elementy stalowe pakowane są na stalowych paletach
Czas dostawy: 25-35 dni roboczych
Zasady płatności: L/C, T/T
Możliwość Supply: 2000 ton / miesiąc
opis produktu

ODM Stacja benzynowa Szopka Ramowa stalowa Budynki przemysłowe Prefab ISO9001

 

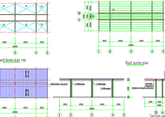
Szczegóły tego budynku

 

Klient dostarcza rysunki, a po porozumieniu z klientem, nasi technicy zmieniają spawanie do połączenia śrub, co jest wygodne do transportu, i co ważniejsze,może znacznie przyspieszyć prędkość instalacji.

 

Wielkość

 

L (M)

 

W (M) H (M)
 

 

20

 

9 5
Dach

 

rurociąg

 

izolacja rury
 

 

φ100UPVC

 

- Nie, nie. 10,0 mm żuraw z stali nierdzewnej

 

Stacja benzynowa ODM Szopa Stalowa rama Budynki przemysłowe Prefabrykowane ISO9001 0

 

Zalety konstrukcji stalowych

Prefabrykowane budynki warsztatowe konstrukcji stalowych są wykorzystywane do produkcji przemysłowej, w których wszystkie konstrukcje stalowe są malowane, a następnie dostarczane do obiektu projektu do montażu.A ponieważ konstrukcja stalowa może być wyprodukowana w fabryce i zainstalowana na miejscu, czas budowy jest znacznie skrócony.

 

Ze względu na stal może znacznie zmniejszyć ilość odpadów budowlanych i jest bardziej przyjazny dla środowiska.

 

O naszej firmie

 

QINGDAO GUSITE CONSTRUCTION TECHNOLOGY CO., LTD, założona w 2014 r., jest międzynarodowym dużym przedsiębiorstwem prywatnym o wysokiej technologii, zdywersyfikowanym i zorientowanym na eksport, integrującym badania i rozwój, projektowanie, produkcję,Instalacja i budowa w kraju i za granicą, i usług technicznych.

 

Stacja benzynowa ODM Szopa Stalowa rama Budynki przemysłowe Prefabrykowane ISO9001 1

 

Posiada certyfikat kwalifikacyjny zarządzania projektami za granicą wydany przez chińskie Ministerstwo Handlu, certyfikat CE [certyfikat EN1090], certyfikat 1S09001 itp.

 

Stacja benzynowa ODM Szopa Stalowa rama Budynki przemysłowe Prefabrykowane ISO9001 2

 

Pojemność produkcyjna

 

Nasza firma: Qingdao GUSITE CONSTRUCTION TECHNOLOGY CO., LTD

Spółka posiada:

 

 

2 linie produkcyjne płyt kompozytowych

 

więcej niż 1 milion metrów/rok

 

5 linii produkcyjnych płyt stalowych kolorowych

 

2 miliony metrów/rok

 

2 linie produkcyjne CNC ze stali typu H

 

20000 ton/rok

 

1 Linia produkcyjna stali typu C

 

2500 ton/rok

 

1 linia produkcyjna stali Z

 

2,000 ton/rok

 

Stacja benzynowa ODM Szopa Stalowa rama Budynki przemysłowe Prefabrykowane ISO9001 3

Polecane produkty
Skontaktuj się z nami
Osoba kontaktowa : Mr. Jia
Tel : +86 13969609102
Faks : 86-532-8389-7722
Pozostało znaków(20/3000)